- Los planos mostrados son de carácter informativo no vinculante.
- Las viviendas se entregan sin amueblar, el mobiliario mostrado en los planos es a titulo informativo.
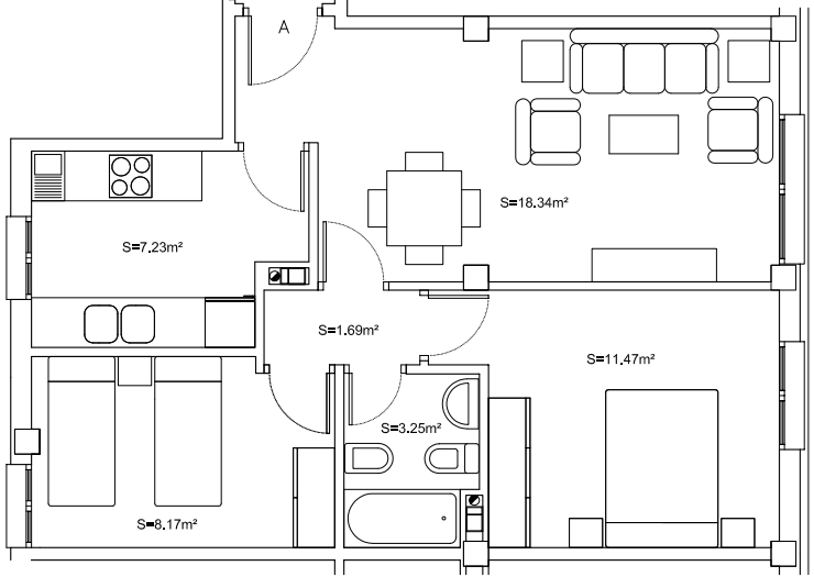
VIVIENDA TIPO A. 2 DORMITORIOS. PLANTA BAJA A QUINTA.
Haz click en la imagen para ver a tamaño completo.

La vivienda tipo de 2 dormitorios, cuenta con salón comedor independiente, cocina amueblada (Sin electrodomésticos), 1 cuarto de baño completo y 2 dormitorios.
Plaza de aparcamiento en el mismo edificio y zonas comunes.
El edificio consta de cuatro portales de acceso, dos de ellos por C/ José Luis Pérez Pujadas y otros dos por la C/ La Malaha.
Haz click en la imagen para ver a tamaño completo.

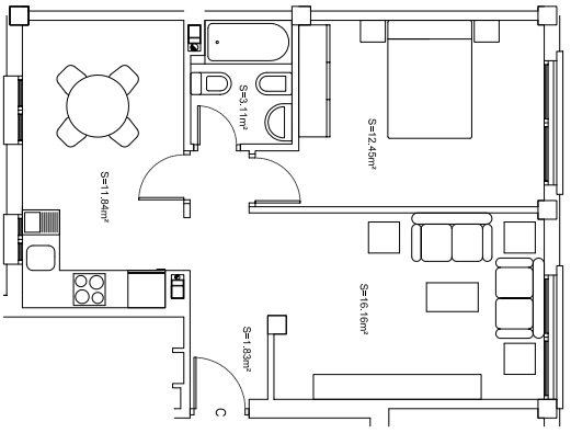
La vivienda tipo de 1 dormitorio, cuenta con salón comedor independiente, cocina amueblada (Sin electrodomésticos), 1 cuarto de baño completo y 1 dormitorio.
Plaza de aparcamiento en el mismo edificio y zonas comunes.
El edificio consta de cuatro portales de acceso, dos de ellos por C/ José Luis Pérez Pujadas y otros dos por la C/ La Malaha.
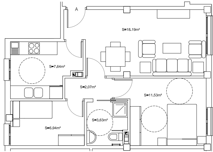
VIVIENDA TIPO A. 2 DORMITORIOS. PLANTA BAJA MOVILIDAD REDUCIDA.
Haz click en la imagen para ver a tamaño completo.

La vivienda tipo de 2 dormitorio, cuenta con salón comedor independiente, cocina amueblada (Sin electrodomésticos), 1 cuarto de baño y 2 dormitorios.
Plaza de aparcamiento en el mismo edificio y zonas comunes.
El edificio consta de cuatro portales de acceso, dos de ellos por C/ José Luis Pérez Pujadas y otros dos por la C/ La Malaha.
VIVIENDA TIPO B. 1 DORMITORIO. PLANTA BAJA.
Haz click en la imagen para ver a tamaño completo.

La vivienda tipo de 1 dormitorio, cuenta con salón cocina amueblada (Sin electrodomésticos), 1 cuarto de baño, 1 dormitorio y un comedor.
Plaza de aparcamiento en el mismo edificio y zonas comunes.
El edificio consta de cuatro portales de acceso, dos de ellos por C/ José Luis Pérez Pujadas y otros dos por la C/ La Malaha.
VIVIENDA TIPO B. 2 DORMITORIOS. PLANTA PRIMERA A QUINTA.
Haz click en la imagen para ver a tamaño completo.

La vivienda tipo de 2 dormitorio, cuenta con salón comedor independiente, cocina amueblada (Sin electrodomésticos), 1 cuarto de baño y 2 dormitorios.
Plaza de aparcamiento en el mismo edificio y zonas comunes.
El edificio consta de cuatro portales de acceso, dos de ellos por C/ José Luis Pérez Pujadas y otros dos por la C/ La Malaha.
